Belfast City Landing Services & Operation

The Belfast Public Landing, owned by the City of Belfast, is a marine facility serving the public, commercial marine businesses, recreational boaters, commercial fishermen, charter vessel operators, and many other harbor users. The Public Landing is run by a full time Harbor Master and Deputy Harbor Master and seasonal dock attendants, all employed by the City of Belfast. 

The Belfast Public Landing offers the following services:

  •     non-ethanol, high octane gasoline
  •     dyed diesel
  •     ice
  •     transient dockage and moorings (as well as seasonal dockage at Thompson’s Wharf)
  •     short term dockage for lunch or a visit up town
  •     showers & restrooms
  •     pump-out station
  •     launch ramp and adjacent trailer parking
  •     dinghy tie-up
  •     water & shore power
  •     WiFi, boater information, book swap

Belfast City Landing 3

Reservations

We do take reservations for both transient slips and mooring rentals. You can call ahead to the Harbor Office at 207-338-1142, or email us at harbormaster@cityofbelfast.org. Currently we do not take online reservations as we still prefer the old fashioned one on one with visiting boaters, but we are considering online booking options. Reservations are not required but are strongly recommended during the busy months of July and August, however we almost always can help last minute visitors who call on their way into the harbor. We must be notified if you wish either slip or mooring space. Vessel owners should not pick up any vacant rental mooring or slip without notifying the Harbor Office, or marine business that owns the mooring or dock facility. If you are coming in after hours, give us a call beforehand and we will assign you a space. Current rates for the Public Landing and City rental moorings may be found here: Belfast Harbor Usage Fees 2026

Communication

Visiting boaters may contact the Belfast Public Landing by hailing the Harbor Master on VHF channel 9 or 16. Our working channel is VHF channel 9. You may also contact us by phoning the Harbor Office, but please keep in mind we may not always be in the office. We do carry radios so can always be contacted if you are in VHF range. Please also keep in mind, as handy as cell phones are, they may not always have a good signal, so communication may not be clear. Also, by law, boaters should be monitoring VHF channel 16, especially when entering a mooring field or harbor with other vessel traffic. We have often tried to contact vessels by radio to give them assistance or a warn them of danger, but did not get a response. So please use your radio and make sure the volume is up!

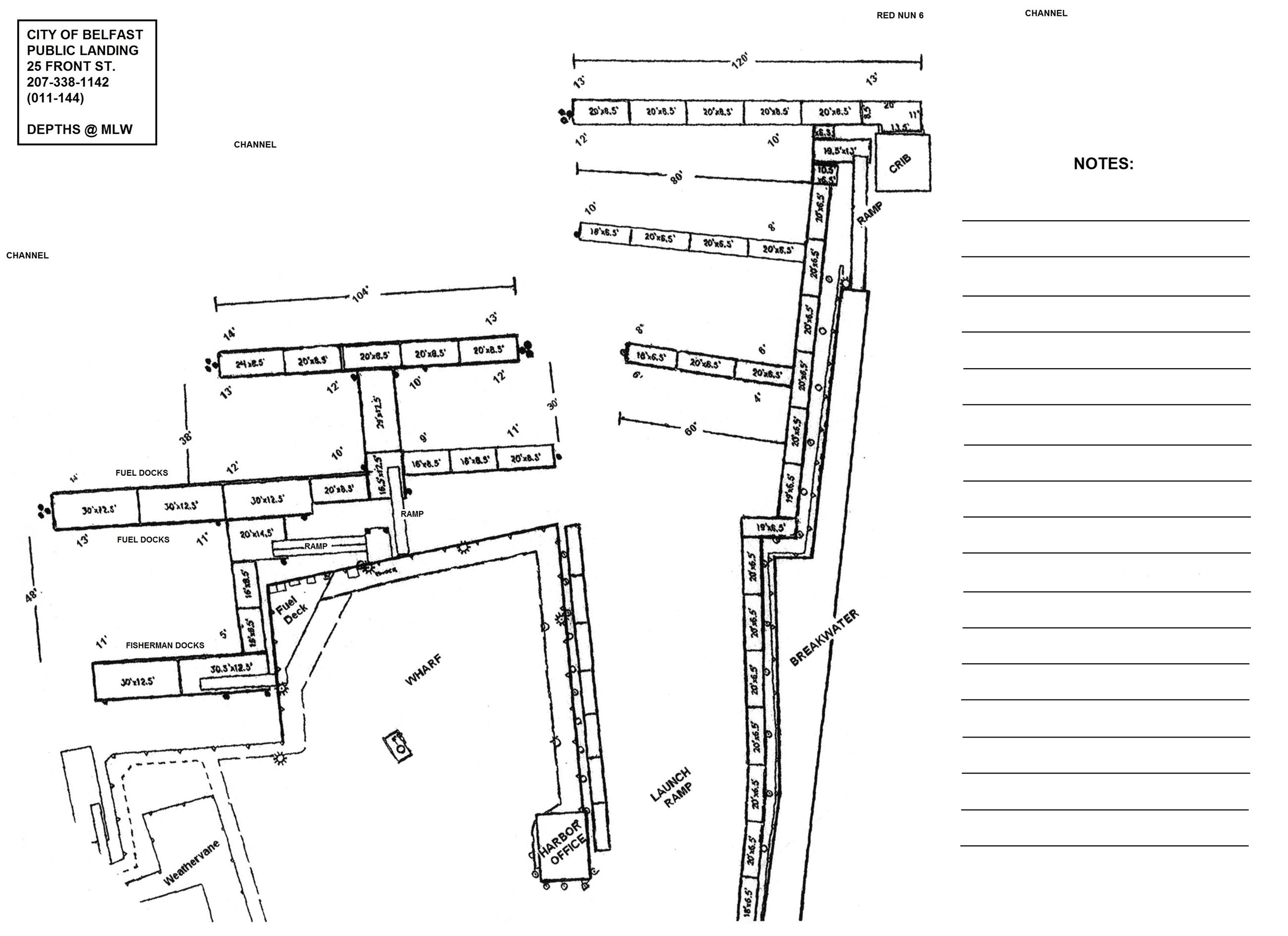
Plans of Belfast Public Landing and Mooring Field

Dock Plan Belfast Public Landing

Kayak/Canoe storage on City of Belfast Property

The City offers racks for kayak and small canoes for non-mooring owners. Space is limited so we only issue a certain number of required stickers for the season. Belfast residents and those who have not stored the previous year have priority. A sign up list is maintained and stickers are issued at the Harbor Office. Fees can be found in the Belfast Harbor Usage Fees 2026

Please Note: Any kayaker or boater not familiar and comfortable with sea conditions should either take training or otherwise educate themselves on rules and safety before going out. The Rules of the Road - Federal boating regulations to keep boaters safe, and other information is readily available online. The local Coast Guard Auxiliary also holds boating classes on a regular basis. Always use common sense to stay safe! Please read these safety tips for Belfast Harbor:  Belfast Harbor Safety